高いモジュール変換効率
モジュールパワー業界をリードし、変換効率は24.1%に達します
製品データの更新は2025年4月
最大出力
最高変換効率
出力公差
モジュールパワー業界をリードし、変換効率は24.1%に達します
両面率は80%と高く、モジュールの追加発電量は通常のモジュールより30%高いです
両面ダブルガラスモジュール、対称的な構造設計、低い亀裂リスク
PM2.5、曇りなどの弱光条件下では通常のモジュールよりも高出力です
3倍のIEC新標準テストに合格し、15年間の材料保証、30年間の電力保証
地上工商業発電所の優先的に選ぶモジュール製品
|
セルタイプ
|
N型単結晶
|
|
モジュール寸法
|
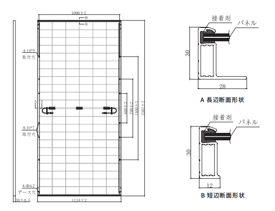
2382×1134×30mm
|
|
ガラス厚み
|
2.0mm+2.0mm |
|
モジュール質量
|
31.9Kg
|
|
出力ケーブル
|
4mm²,長さ +400mm/-200mm(カスタマイズ可能) |
|
コネクタ
|
PV-DA02M2-XY (カスタマイズ可能)
|
| ジャンクションボックス |
IP68,バイパスダイオード×3
|
|
フレーム
|
アルマイト処理アルミニウム合金
|

|
最大システム電圧
|
DC1500V |
|
出力公差
|
0~+5W |
|
動作温度
|
-40℃~+85℃ |
|
最大ヒューズ定格電流
|
30A |
| 静止荷重 | 正面5400 Pa , 裏面 2400 Pa |
|
梱包仕様
|
36枚/パレット;144枚/20'GPコンテナ;720枚/40'HCコンテナ
|